RUSTIC CHARM DINING

REMODELED 2024

This rustic dining environment embraces warmth, texture, and authenticity through natural materials and simple, time-honored forms. Wood, earth-toned finishes, and a gabled roof create a welcoming atmosphere that feels both grounded and intimate. Designed to encourage gathering and connection, the space balances traditional character with a relaxed, contemporary dining experience.


STREET PERSPECTIVE

STREET PERSPECTIVE

FLOOR PLAN

BUILDING SECTION

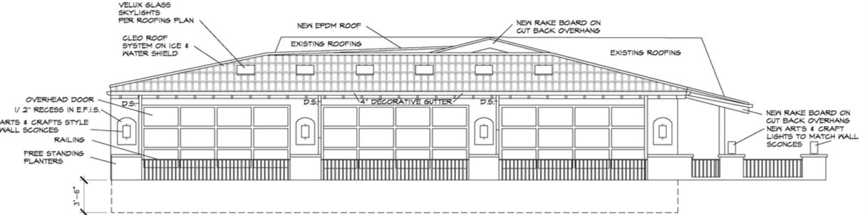
BUILDING ELEVATION