SEAMLESS EXTENSION

EXPECTED 2026

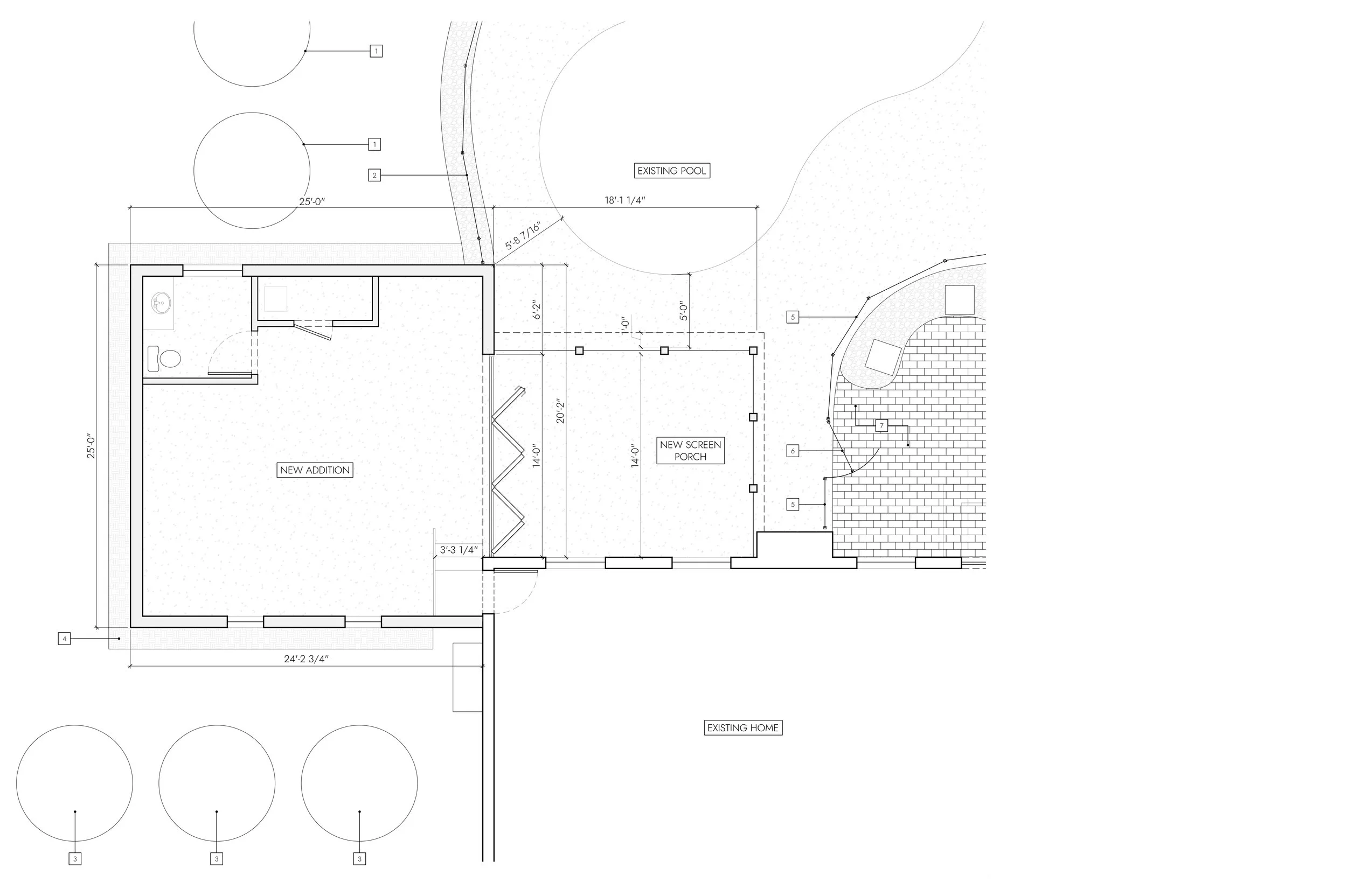
This project proposes a seamless extension to an existing residence, carefully integrating new living spaces with the original home. The design extends naturally into the landscape through a coordinated pool and patio, creating a fluid transition between indoor and outdoor environments. Material continuity, open sightlines, and thoughtful landscaping work together to enhance everyday living while establishing a cohesive, resort-like retreat.

ENTRANCE PERSPECTIVE

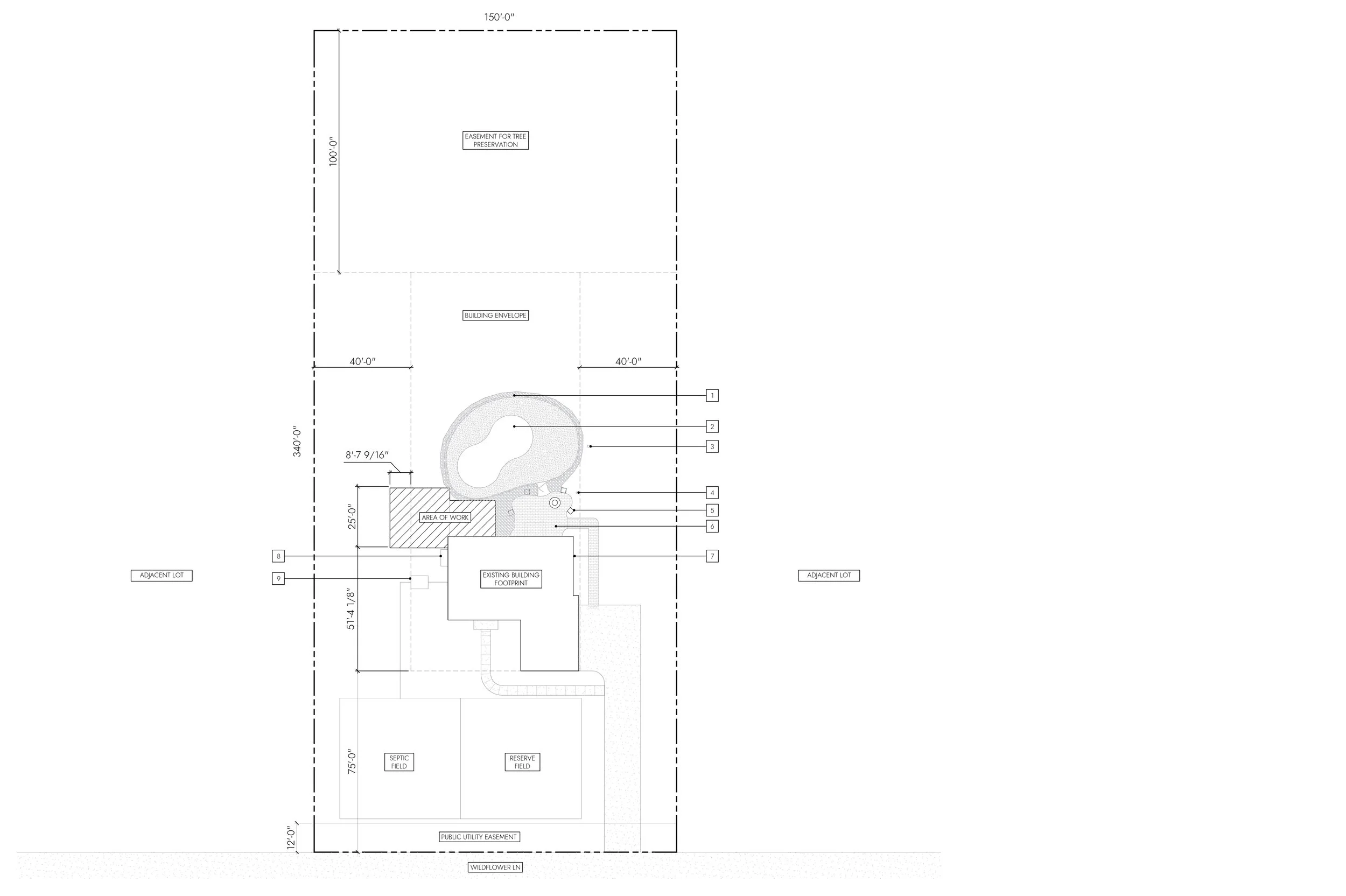
FLOORPLAN

DETAILED FLOORPLAN