360° HOUSE

COMING 2026

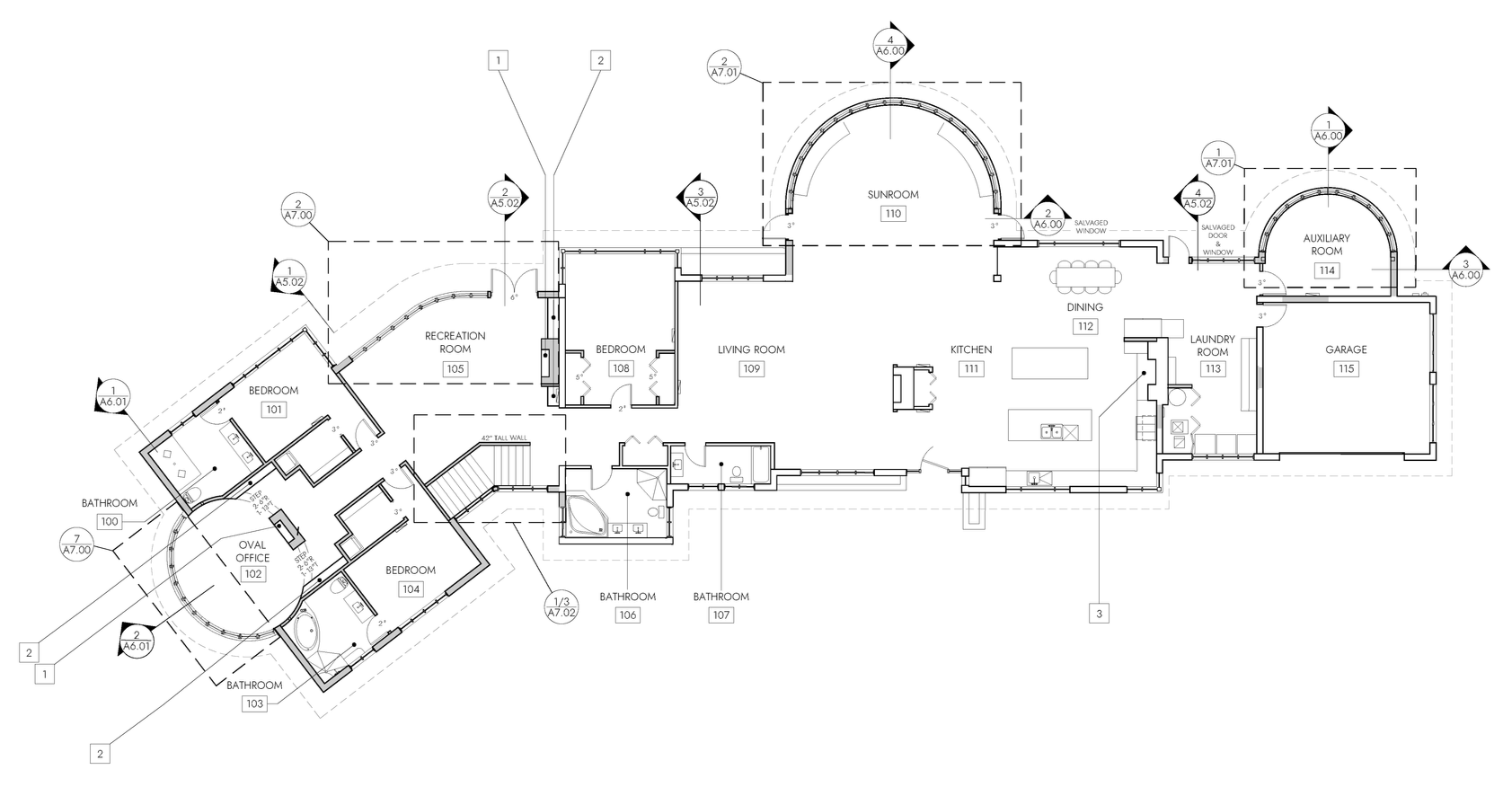
A light-filled residential addition organized around semicircular living spaces that open the home toward the golf course. Curved forms maximize daylight, frame panoramic views, and create a seamless connection between interior living areas and the surrounding landscape.


SOUTH PERSPECTIVE

NORTH PERSPECTIVE

FLOOR PLAN

ROOF PLAN

EAST ELEVATION

NORTH ELEVATION