WARM-WOOD DINNING SPACE

BUILT 2026

The project uses exterior wood cladding to establish a warm, tactile presence within the urban context. Natural materials and a restrained palette create a clear identity from the street, while the interior dining spaces prioritize clarity, durability, and operational efficiency. The design balances material expression with the functional demands of a neighborhood restaurant..


Restaurant and food service architectural design in the Greater Lansing area, Michigan.

ENTRANCE PERSPECTIVE

Architectural plans of a building with the sign 'Casa Tequila Mexican Grill & Steakhouse,' showing front elevation and interior layout details.

BEFORE AND AFTER ELEVATIONS

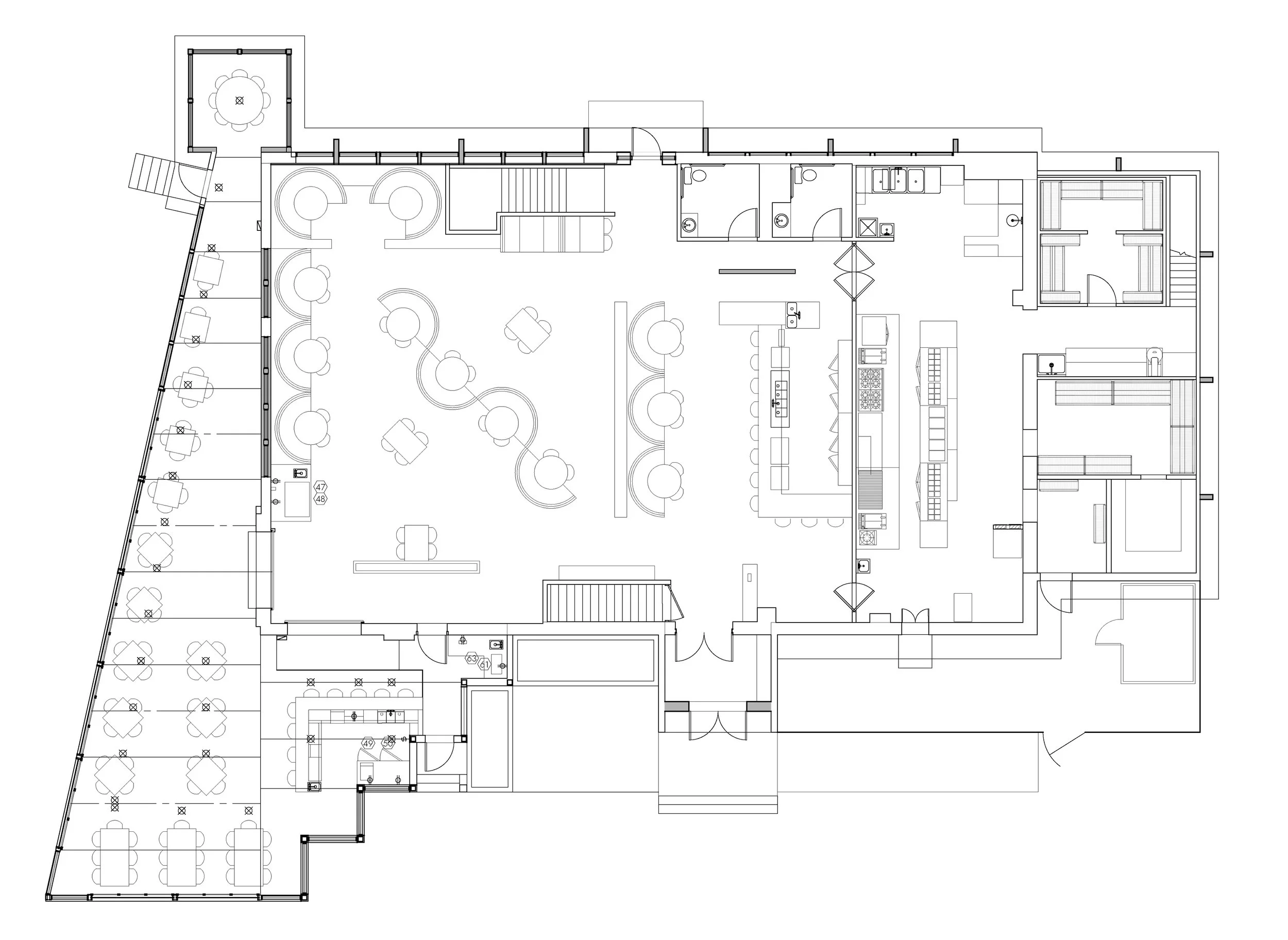
Architectural floor plan of a building, showing various rooms, furniture, and layout details.

FLOOR PLAN

Restaurant and food service architectural design in the Greater Lansing area.

BACK ENTRANCE PERSPECTIVE